井吹東シティコート2号棟(Fタイプ) 3階
室内設備は追い焚き・システムキッチンなど充実した設備を備え付けています。ご家族様にも嬉しい節約の助けとなる礼金不要の物件。車をお持ちの方にもオススメの、自走式駐車場を利用できる物件です。光回線を繋げていますので通信が早く快適にパソコンが使えます。閑静な住宅地にある物件です。自分のライフスタイルに必要なお住まいをお選びください。お住まい探しをサポートしてまいります(^o^)
- 賃料
- 8.94万円
- 間取り
- 3LDK
- 専有面積
- 66.00㎡
- 所在階
- 3階
- 管理費・共益費
- 2,000円
- 敷金
- 1ヶ月
- 礼金
- 0ヶ月
-
情報の見方
担当者のコメント 下淵正哉

- ☆礼金0円・仲介料0円・敷金1ヵ月☆
室内設備はシステムキッチン・追い焚きなど充実した設備を備え付けています。3LDKのお部屋はいかがでしょうか。こちらのお部屋で新しい生活を始めてみませんか。駐車場の空きがあるので、他で駐車場を契約する必要がありません。このお部屋は66㎡です。お客様とそのご家族の生活に大きく関わってくる、住の環境。これまでよりもよい生活を送るための住まいを見つけましょう(^o^)
ポイント・特徴
お部屋探しに関するご相談は何でもお気軽にお問合せ下さい♪経験豊富なスタッフがお客様のご不安を解消できるように精いっぱいご対応させて頂きます!
物件概要
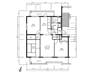
【マンション】 物件番号:71612929 情報更新日:2025年11月07日 次回更新予定日:2025年11月15日所在地 兵庫県神戸市西区井吹台東町4丁目18 交通 間取り/詳細 3LDK
和室 6.0帖/洋室 5.8帖/洋室 6.2帖/LDK 12.9帖面積/バルコニー面積 66.00㎡/- 賃料 8.94万円 管理費・共益費 2,000円 敷金/礼金/保証金 1ヶ月/0ヶ月/0ヶ月 償却/敷引 -/- 更新料 - 敷金積み増し - 権利金/雑費 -/- 駐車場/月額料金 空有(1台)/9,900円 (税込) 保険加入/料金 有/7,000円 保険名/保険期間 損害保険/1年 保証人代行義務/利用料 必加入/ 詳細お気軽にお問合せ下さい。 保証会社 その他 保証会社詳細 詳細お気軽にお問合せ下さい。 向き 南 築年月(築年数) 1995年 12月 (築29年) 契約期間 2年 種別/構造 マンション/鉄筋コンクリート 部屋/所在階/階建 -/ 3階/ 3階建 総戸数 - 現況/入居可能日 空家/相談 特優賃 - 取引態様/賃貸区分 仲介/一般 物件番号 71612929 取引条件の有効期限 2025年11月15日 設備条件 - 陽当り良好
- 閑静な住宅地
- 保証人不要
- 2人入居可
- 高齢者相談
- 眺望良好
- 法人可
- 外国人可
- ガスコンロ設置可
- ファミリー向け
- 仲介手数料無料
- 室内洗濯機置場
- バルコニー
- 都市ガス
- 公営水道
- 公共下水
- 電気有
- 駐輪場
- バイク置場あり
- 敷地内ごみ置き場
- ガスコンロ
- システムキッチン
- バス・トイレ別
- 追焚機能浴室
- シャワー
- 独立洗面台
- CATV
- 光ファイバー
備考 ハッピーウエディング支援制度・・・月額1万円、すくすくジュニア支援制度・・・月額1万円(ハッピーウエディング支援制度とすくすくジュニア支援制度は併用できません)、ウェルカムKOBE支援制度・・・月額5,000円(ハッピーウエディング支援制度、またはすくすくジュニア支援制度との併用可)、適用条件や適用期間等、お気軽に当店スタッフ迄お問合せ下さい♪神戸市西区周辺のお部屋探しは【アローズホーム】にお任せ下さい!お客様一人ひとりに寄り添ったご提案でお部屋探しをサポート致します!よりお客様に喜んで頂けるように「おもてなしの心」を持って親切・丁寧・迅速にご対応させて頂きます。現地お待ち合わせでの内見も可能です。オンライン内見、最寄り駅迄の送迎サービスもございます。お部屋探しに関するご不安やご不明点など何でもお気軽にお問合せ・ご相談下さいませ♪♪ 条件(その他) CATV代:674円(月額) 取扱会社 - アローズホーム ㈱オスピタリタ
- 兵庫県神戸市西区池上3丁目6-1 メゾンドール西久保Ⅱ2F
- TEL:078-978-2024
- 兵庫県知事 (1) 第12329号
- (公社)全国宅地建物取引業協会連合会
※地図上に表示される物件の位置は付近住所に所在することを表すものであり、実際の物件所在地とは異なる場合がございます。
物件お問い合わせ
- 掲載物件数
-
件
- 公開物件数
-
件
- 本日の更新件数
-
件
同じエリアのマンション
この物件を見た方へのお勧め物件
- パルティーダ B棟
- 8.9万円 3LDK/73.91㎡
- 兵庫県神戸市西区伊川谷町長坂
- 神戸市西神・山手線「伊川谷」駅
- グランシャリオ
- 8.9万円 2LDK/60.37㎡
- 兵庫県神戸市西区小山1丁目
- 山陽本線「明石」駅
- 長畑町アパート
- 9万円 1LDK/50.14㎡
- 兵庫県神戸市西区長畑町
- 山陽本線「明石」駅
- フロリバンダ
- 9.3万円 2LDK/57.84㎡
- 兵庫県神戸市西区今寺
- 神戸市西神・山手線「伊川谷」駅
- ECO SOLEIL B棟
- 8.5万円 2LDK/61.82㎡
- 兵庫県神戸市西区伊川谷町有瀬
- 山陽本線「明石」駅 徒歩48分

















